Desain Rumah Scandinavian 2 Lantai Terbaru 2025 semakin diminati oleh para pecinta interior minimalis. Dengan tampilan yang bersih, terang, dan hangat, gaya ini menciptakan hunian yang nyaman serta estetis. Artikel ini akan menyajikan berbagai inspirasi dan tips praktis untuk mengaplikasikan desain Scandinavian di rumah Anda.
Apa Itu Desain Rumah Scandinavian?
Desain rumah Scandinavian adalah gaya arsitektur dan interior dari negara Nordik yang menekankan kesederhanaan, fungsionalitas, dan kenyamanan. Gaya desain rumah Scandinavian ini menggunakan warna netral, material alami, serta pencahayaan alami untuk menciptakan suasana yang bersih dan lapang.
Ciri Khas Desain Rumah Scandinavian
Ciri khas desain rumah Scandinavian meliputi desain minimalis, penggunaan warna terang, tata ruang terbuka, serta perabotan sederhana namun fungsional. Elemen alami seperti kayu dan tanaman juga sering digunakan dalam desain rumah Scandinavian untuk menambah kesan hangat dan nyaman.
Material yang Sering Digunakan dalam Desain Rumah Scandinavian
Material utama yang digunakan dalam desain rumah Scandinavian adalah kayu, batu, kaca, serta kain alami seperti linen dan wol. Penggunaan material ini membantu menciptakan suasana yang hangat, alami, dan nyaman dalam rumah dengan konsep desain rumah Scandinavian.
Warna dan Pencahayaan dalam Desain Rumah Scandinavian
Warna yang dominan dalam desain rumah Scandinavian adalah putih, abu-abu, beige, serta warna pastel yang lembut. Pencahayaan alami sangat diutamakan dengan penggunaan jendela besar, sementara pencahayaan buatan dalam desain rumah Scandinavian menggunakan lampu dengan desain sederhana dan cahaya hangat.
Tips Menerapkan Desain Rumah Scandinavian di Rumah Anda
Gunakan warna-warna netral khas desain rumah Scandinavian, pilih perabotan sederhana dengan desain fungsional, dan maksimalkan pencahayaan alami. Tambahkan elemen kayu dan tanaman sebagai bagian dari desain rumah Scandinavian untuk menciptakan kesan alami serta hindari dekorasi berlebihan agar rumah tetap terasa luas dan nyaman.
Contoh Desain Rumah Scandinavian
Desain Rumah Scandinavian 2 Lantai Terbaru 2025 menawarkan fasad yang elegan dan menawan, memadukan keindahan minimalis dengan fungsionalitas modern. Berikut adalah inspirasi desain yang bisa Anda jadikan referensi untuk membangun rumah impian yang nyaman dan estetis.
1. Detail Ukuran Rumah
A. Ukuran Lahan
- Lebar tanah : 8 m
- Panjang tanah : 25 m
- Luas Tanah : 200 m²
B. Ukuran Bangunan
- Luas Lantai 1 : – m²
- Luas Lantai 2 : – m²
- Total Luas Bangunan : – m²
Fee Desain Arsitek : Hubungi Kami ➔
2. Fasilitas Rumah
A. LANTAI 1
- Taman
- Carport 2 Mobil (6,5 x 5,8 m)
- Gudang
- Ruang Tamu
- Ruang Makan
- Kamar Mandi
- Pantry
- Dapur
- Ruang Keluarga
- Gudang
- Area Tangga
- Kamar Tidur Orang tua + Kamar Mandi
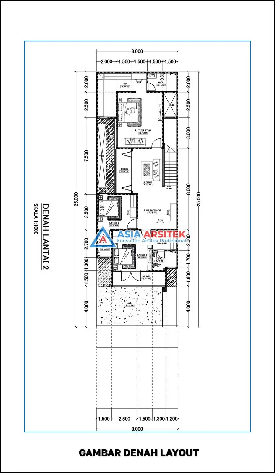
B. LANTAI 2
- Area Tangga
- Ruang Duduk
- Ruang Kerja/Belajar
- Kamar Tidur Utama + WIC + Kamar Mandi
- Kamar Tidur 1 + WIC + Kamar Mandi
- Kamar Tidur 2 + WIC + Kamar Mandi
- Void
2. Gambar 3D Eksterior Desain Rumah Scandinavian
1). 3D EKSTERIOR VIEW 1

2). 3D EKSTERIOR VIEW 2


3). 3D EKSTERIOR VIEW 3


Desain Rumah Scandinavian 2 Lantai Terbaru 2025
4). 3D EKSTERIOR VIEW 4

Desain Rumah Scandinavian 2 Lantai Terbaru 2025
3. Gambar Denah Layout Desain Rumah Scandinavian
1). GAMBAR DENAH LANTAI 1 & 2

2). GAMBAR DENAH LANTAI 2 & LANTAI ATAP


Desain Rumah Scandinavian 2 Lantai Terbaru 2025
Biaya / Harga Desain Rumah Scandinavian
Biaya arsitek desain rumah Jasa Arsitek Rumah Depok dihitung berdasarkan luasan desain. Untuk biaya desain arsitek kami di 100 ribu per meter persegi (untuk luasan bangunan diatas 250 m2).
Harga jasa desain rumah per meter persegi mencakup desain teknis lengkap untuk keseluruhan bangunan rumah tinggal, baik bagian luar maupun dalam.

Desain Rumah Scandinavian 2 Lantai Terbaru 2025
Kesimpulan
Desain rumah Scandinavian adalah pilihan ideal bagi mereka yang menginginkan hunian yang sederhana, fungsional, dan nyaman. Dengan ciri khas minimalis, penggunaan material alami, serta warna netral yang dipadukan dengan pencahayaan alami, desain ini menciptakan suasana yang lapang dan hangat. Untuk menerapkannya, cukup fokus pada kesederhanaan, fungsionalitas, dan elemen alami agar rumah tetap nyaman dan estetis tanpa kesan berlebihan.
Desain rumah Scandinavian tidak hanya menawarkan keindahan visual tetapi juga kenyamanan. Dengan menerapkan tips di atas, Anda bisa menciptakan rumah yang minimalis dan nyaman. Jangan lupa untuk membagikan artikel ini jika Anda merasa terbantu!
Baca Juga :
Tips Memilih Furnitur Scandinavian
Lihat Juga :
- Desain Rumah Scandinavian 3 Lantai dengan Denah ➔
- Desain Rumah Scandinavian 3 Lantai dan Biaya ➔
- Desain Rumah Scandinavian 3 Lantai 10×20 meter ➔
- Desain Rumah Scandinavian 3 Lantai 4 Kamar Tidur ➔
- Desain Rumah Scandinavian 2 Lantai dengan Denah ➔
Artikel Lainnya :
- Desain Rumah Scandinavian 3 Lantai di lahan 10×20 meter
- Desain Rumah Scandinavian 2 Lantai di lahan 10×15 meter
- Desain Rumah Scandinavian 2 Lantai di lahan 9×18 meter
- Desain Rumah Scandinavian 2 Lantai di lahan 9×20 meter
- Desain Rumah Scandinavian 3 Lantai di lahan 12×20 meter
- Desain Rumah Scandinavian 2 Lantai di lahan 8×25 meter
