Desain Rumah Scandinavian 3 Lantai dengan Denah, rumah model scandinavian lengkap mulai dari denah layout, gambar 3D desain rumah scandinavian, fasad rumah scandinavian. Gambar rumah scandinavian berikut ini bisa jadi referensi desain rumah impian Anda. Model rumah scandinavian telah menjadi salah satu gaya arsitektur terpopuler di dunia dengan keindahan estetika minimalis yang berpadu dengan material alami dan penekanan pada fungsionalitas.
Desain Rumah Scandinavian 3 Lantai dengan Denah
Jika Anda sedang mencari inspirasi desain rumah yang mengutamakan keindahan sekaligus fungsionalitas, gaya Scandinavian bisa menjadi pilihan yang sempurna. Dengan desain yang simpel, elegan, dan nyaman, rumah bergaya Scandinavian mampu menciptakan suasana hangat dan menenangkan. Agar hunian impian Anda semakin optimal, perencanaan yang matang sangatlah penting. Simak artikel ini sampai selesai untuk mendapatkan referensi desain rumah Scandinavian terbaik!
Desain Rumah Scandinavian
Rumah Scandinavian, atau gaya Skandinavia, adalah gaya arsitektur dan desain interior yang berasal dari negara-negara Nordik seperti Swedia, Norwegia, Denmark, dan Finlandia. Ciri khasnya adalah desain yang minimalis, fungsional, dan hangat.
Desain Rumah Scandinavian 3 Lantai dengan Denah

Contoh Desain Rumah Scandinavian
Sebuah Desain Rumah Scandinavian 3 Lantai dengan Denah menawarkan fasad yang elegan dan menawan. Berikut adalah tampilan desain rumah yang bisa dijadikan referensi untuk merancang rumah impian Anda.
A. Detail Ukuran Rumah Scandinavian
1). Berikut Data Desain Arsitektur Rumah :
- Lebar tanah bagian depan : 10 m
- Panjang tanah kebelakang : 20 m
- Luas Tanah Keseluruhan : 200 m²
2). Berikut Data Desain Ukuran Bangunan :
- Luas Lantai 1 : – m²
- Luas Lantai 2 : – m²
- Luas Lantai 3 : – m²
- Toal Luas Bangunan : – m²
Desain Rumah Scandinavian 3 Lantai dengan Denah
B. Gambar 3D Eksterior Desain Rumah Scandinavian
Fasad Rumah Scandinavian View 1

Tampak Depan
Desain Rumah Scandinavian View 2

Tampak Depan
Model Rumah Scandinavian View 3

Tampak Depan
Desain Rumah Scandinavian View 4

Tampak Atas
Desain Rumah Scandinavian View 5

Tampak Depan
Desain Rumah Scandinavian 3 Lantai dengan Denah
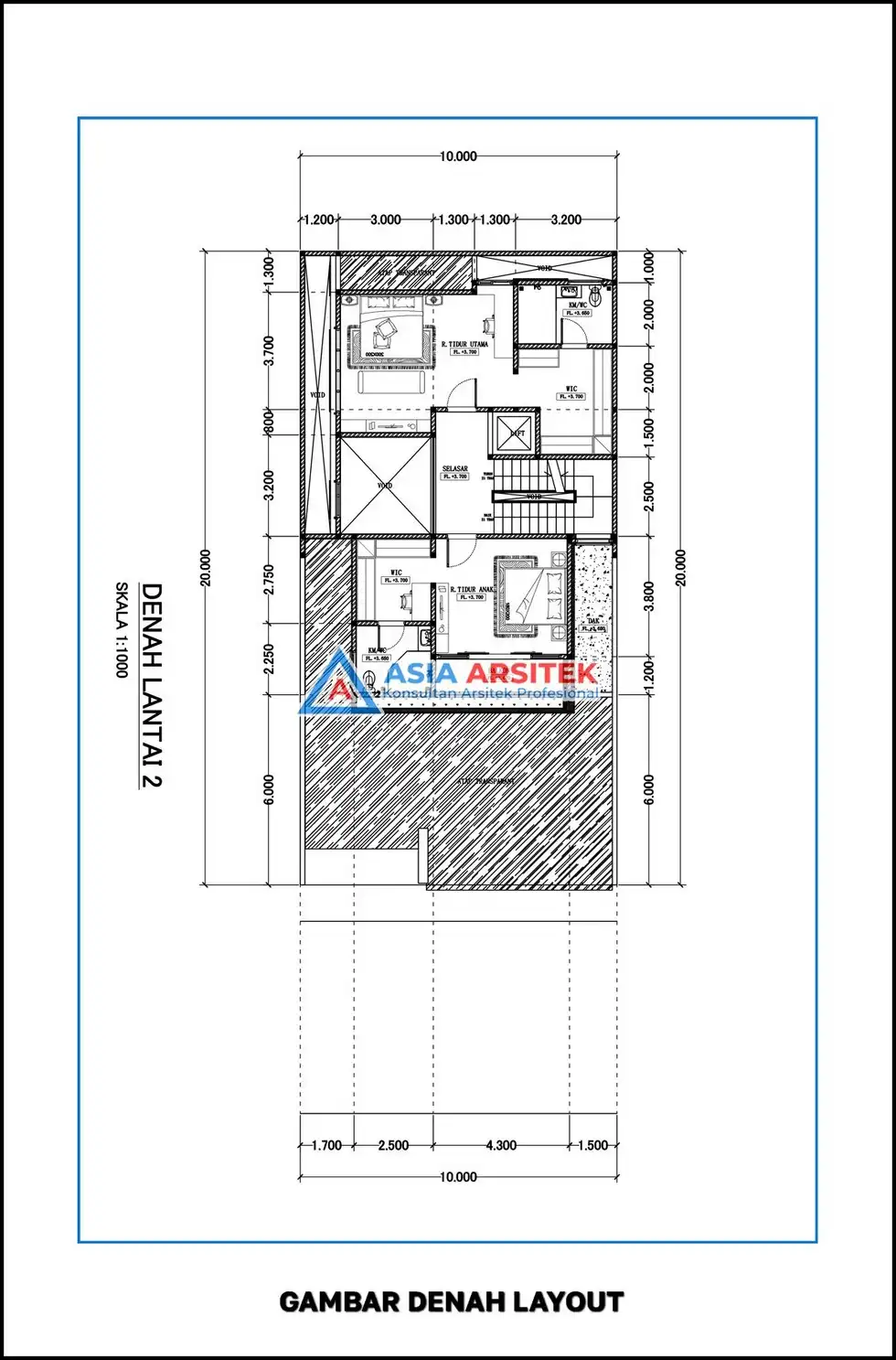
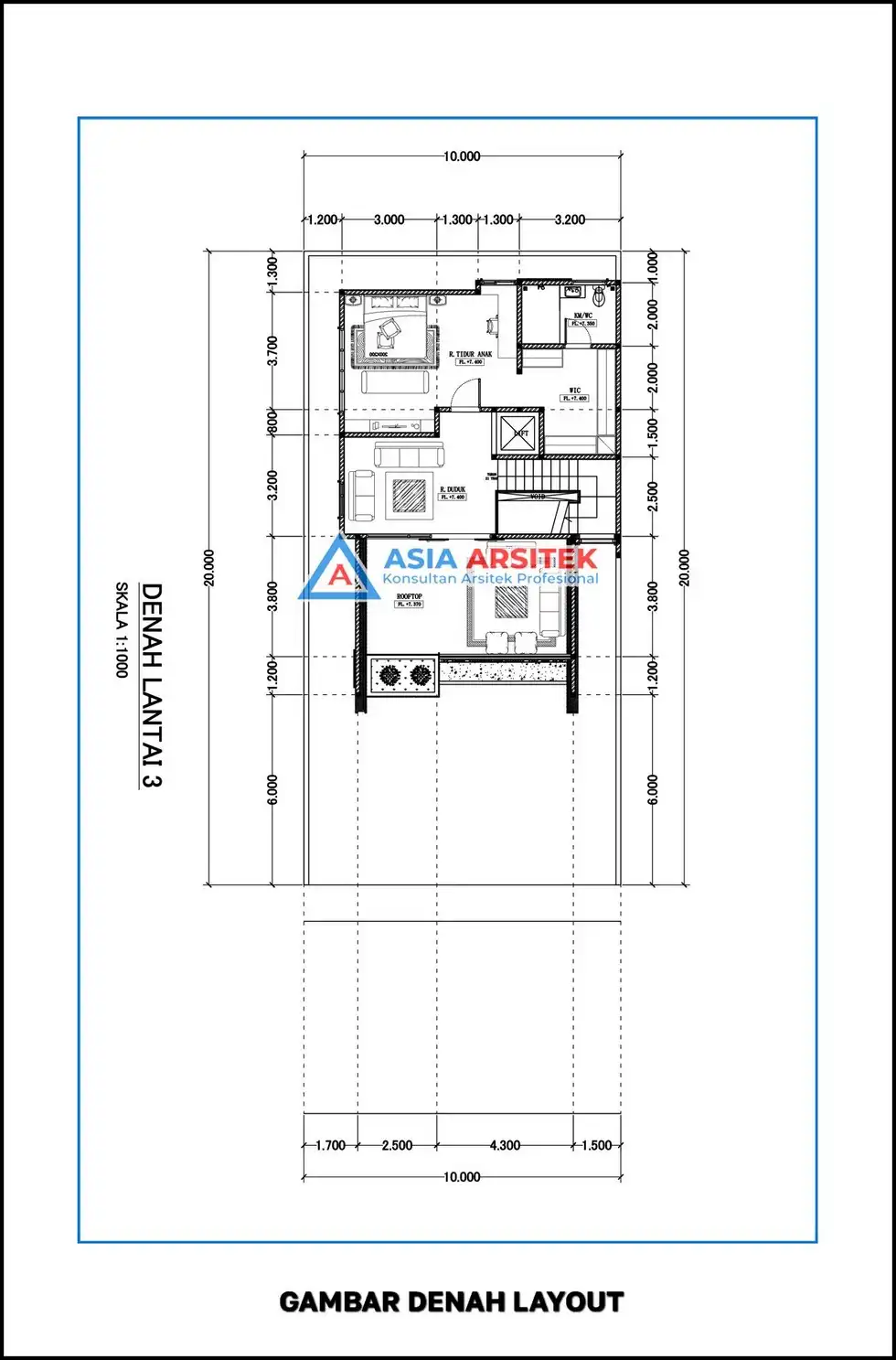
C. Gambar Denah Desain Rumah Scandinavian
berikut ini merupakan denah Desain Rumah Scandinavian 3 Lantai dengan Denah :
Denah Rumah Scandinavian Lantai 1

Detail Denah Rumah Scandinavian Lantai 2

Denah Rumah Scandinavian Lantai 3

Fasilitas Rumah :
-
Taman – Area hijau yang memberikan kesan asri dan sejuk, cocok untuk bersantai atau menanam berbagai jenis tanaman hias.
-
Carport 2 Mobil – Area parkir luas yang mampu menampung dua mobil, memberikan kenyamanan dan keamanan kendaraan Anda.
-
Kamar Mandi – Ruang dengan fasilitas lengkap, dirancang untuk kenyamanan dan kebersihan dengan desain modern dan fungsional.
-
Ruang Tamu – Ruang yang nyaman dan representatif untuk menyambut tamu dengan desain elegan dan tata letak yang lapang.
-
Ruang Keluarga – Area santai bagi anggota keluarga untuk berkumpul, bercengkerama, dan menikmati waktu bersama.
-
Ruang Makan & Pantry – Ruang makan yang menyatu dengan pantry, memberikan suasana hangat dan fungsional untuk menikmati hidangan bersama keluarga.
-
4 Kamar Tidur + Kamar Mandi – Kamar tidur yang luas dan nyaman, masing-masing dilengkapi kamar mandi pribadi untuk privasi dan kenyamanan maksimal.
-
Tempat Jemur – Area khusus untuk menjemur pakaian dengan sirkulasi udara yang baik, memastikan pakaian cepat kering.
-
Ruang Duduk – Spot tambahan untuk bersantai atau menerima tamu dengan suasana yang lebih santai dan informal.
-
Rooftop – Area terbuka di lantai atas yang bisa digunakan untuk bersantai, menikmati pemandangan, atau sebagai ruang multifungsi sesuai kebutuhan.
Desain Rumah Scandinavian 3 Lantai dengan Denah
Video Review Desain Rumah Scandinavian
berikut ini merupakan video review Desain Rumah Scandinavian 3 Lantai dengan Denah
Baca Juga :
- Desain Rumah Scandinavian 3 Lantai dan Biaya
- Desain Rumah Scandinavian 3 Lantai 10×20 meter
- Desain Rumah Scandinavian 3 Lantai 4 Kamar Tidur
- Desain Rumah Scandinavian 2 Lantai dengan Denah
Biaya / Harga Desain Rumah Scandinavian
Untuk Anda yang berminat menggunakan jasa Asia Arsitek untuk merancang Desain Rumah Scandinavian 3 Lantai dengan Denah impian Anda, berikut ini kami lampirkan biaya / harga desain rumah scandinavian per m2. Biaya desain arsitek rumah scandinavian dihitung berdasarkan luasan desain. Untuk luasan bangunan dibawah 250 m2 dikenakan biaya minimum projek sebesar 25 juta rupiah. Berikut detail harganya :
PRICELIST BIAYA DESAIN ARSITEK |
Luas Bangunan |
Biaya Desain |
|---|---|
| 0 – 250 m² | Rp 25.000.000,- |
| 300 m² | Rp 30.000.000,- |
| 350 m² | Rp 35.000.000,- |
| 400 m² | Rp 40.000.000,- |
| 450 m² | Rp 45.000.000,- |
| 500 m² | Rp 50.000.000,- |
| 600 m² | Rp 60.000.000,- |
| 700 m² | Rp 70.000.000,- |
| 800 m² | Rp 80.000.000,- |
| 900 m² | Rp 90.000.000,- |
| 1000 m² | Rp 100.000.000,- |
| Lebih Dari 1000 m² | HUBUNGI KAMI |
Baca Juga : Harga Jasa Arsitek Rumah Depok
Prosedur Desain Rumah Scandinavian
Berikut ini merupakan prosedur desain arsitek rumah scandinavian yang harus Anda ikuti ketika memilih Asia Arsitek sebagai jasa rancang rumah :
- Tahap Pra Desain, Perencanaan & Survey Lokasi
- Tahap 1 DP 25%, Pembuatan Denah Layout
- Tahap 2 25%, Pembuatan 3D Eksterior
- Tahap 3 40%, Pembuatan BONUS (Gambar Kerja Struktur + 3D Interior)
- Tahap 4 10%, Pembuatan Gambar Kerja Arsitektur, Detail & RAB
- Pembutan BONUS ( Gambar Untuk Keperluan IMB ) jika diperlukan
- Penyerahan File Final, Paket pengiriman akan dikirim melalui Go-Send, POS, atau JNE.
Hubungi Kami Sekarang
Wujudkan desain rumah impian yang indah dan nyaman bersama kami! Jika Anda mencari jasa arsitek desain rumah scandinavian, jangan ragu untuk menghubungi Customer Service kami melalui Telepon/WhatsApp: 0821 1371 3353. Kami siap melayani Anda setiap hari, 24 jam. Nikmati juga GRATIS konsultasi dan survey lokasi untuk mewujudkan hunian terbaik bagi Anda.
Kami dengan senang hati mengundang Anda untuk berkunjung ke salah satu kantor kami. Kami berkomitmen untuk memberikan pelayanan terbaik demi membantu mewujudkan hunian impian Anda. Selain itu, kami juga siap memberikan rekomendasi terbaik yang sesuai dengan kebutuhan dan preferensi Anda.
Karakteristik Desain Rumah Scandinavian
- Pertama, Desain Scandinavian identik dengan palet warna netral seperti putih, abu-abu, dan beige. Warna-warna ini memberikan kesan luas dan terang, yang sangat ideal untuk rumah dengan banyak lantai.
- Kedua, Material seperti kayu, batu, dan tekstil alami sangat dominan dalam desain Scandinavian. Kayu terang digunakan untuk lantai, dinding, dan perabotan, memberikan nuansa hangat dan alami.
- Ketiga, Pencahayaan alami sangat penting dalam desain Scandinavian. Jendela besar dan skylight memungkinkan cahaya matahari masuk ke dalam rumah, menciptakan suasana yang terang dan menyegarkan.
- Selanjutnya, Desain Scandinavian menekankan pada fungsionalitas. Setiap elemen desain dipilih berdasarkan kegunaan dan efisiensi ruang. Furnitur dengan desain sederhana dan multifungsi adalah pilihan utama.
Manfaat Desain Rumah Scandinavian 3 Lantai
- Efisiensi Ruang Dengan desain yang fungsional dan efisien, rumah 3 lantai dapat memaksimalkan penggunaan ruang, menyediakan area yang cukup untuk berbagai aktivitas tanpa terasa sempit.
- Pencahayaan Alami yang Optimal Penggunaan jendela besar dan skylight memastikan setiap lantai mendapatkan pencahayaan alami yang cukup, mengurangi kebutuhan akan pencahayaan buatan dan menciptakan suasana yang lebih sehat.
- Estetika yang Menenangkan Palet warna netral dan material alami menciptakan suasana yang tenang dan nyaman, ideal untuk menciptakan lingkungan hidup yang harmonis.
- Ruang untuk Berkembang Dengan 3 lantai, rumah ini menawarkan ruang yang cukup untuk berkembang, baik itu untuk menambah kamar tidur, ruang kerja, atau fasilitas lainnya sesuai kebutuhan keluarga.
Rumah Scandinavian di Indonesia
Seperti yang sudah kita bahas sebelumnya, fasad rumah scandinavian banyak diterapkan di Indonesia. Salah satunya adalah desain rumah yang kita bahas kali ini mengusung desain scandinavian yang indah dan mempesona.
Kesimpulan
Desain Rumah Scandinavian 3 Lantai menghadirkan perpaduan apik antara estetika minimalis dan fungsionalitas yang optimal. Menggunakan palet warna netral, material alami seperti kayu, serta penekanan pada pencahayaan alami dan tata ruang yang efisien, gaya ini menciptakan hunian yang nyaman, modern, dan penuh kehangatan. Menerapkan desain Scandinavian pada rumah tidak hanya mempercantik tampilan visual, tetapi juga meningkatkan kualitas hidup dengan menghadirkan ruang yang harmonis, praktis, dan menyenangkan untuk ditinggali.
Lihat Juga :
Desain Rumah Scandinavian 3 Lantai di lahan 10×20 meter
Desain Rumah Scandinavian 2 Lantai di lahan 10×15 meter
Desain Rumah Scandinavian 2 Lantai di lahan 9×18 meter
Desain Rumah Scandinavian 2 Lantai di lahan 9×20 meter
